Nishkam School
About this project
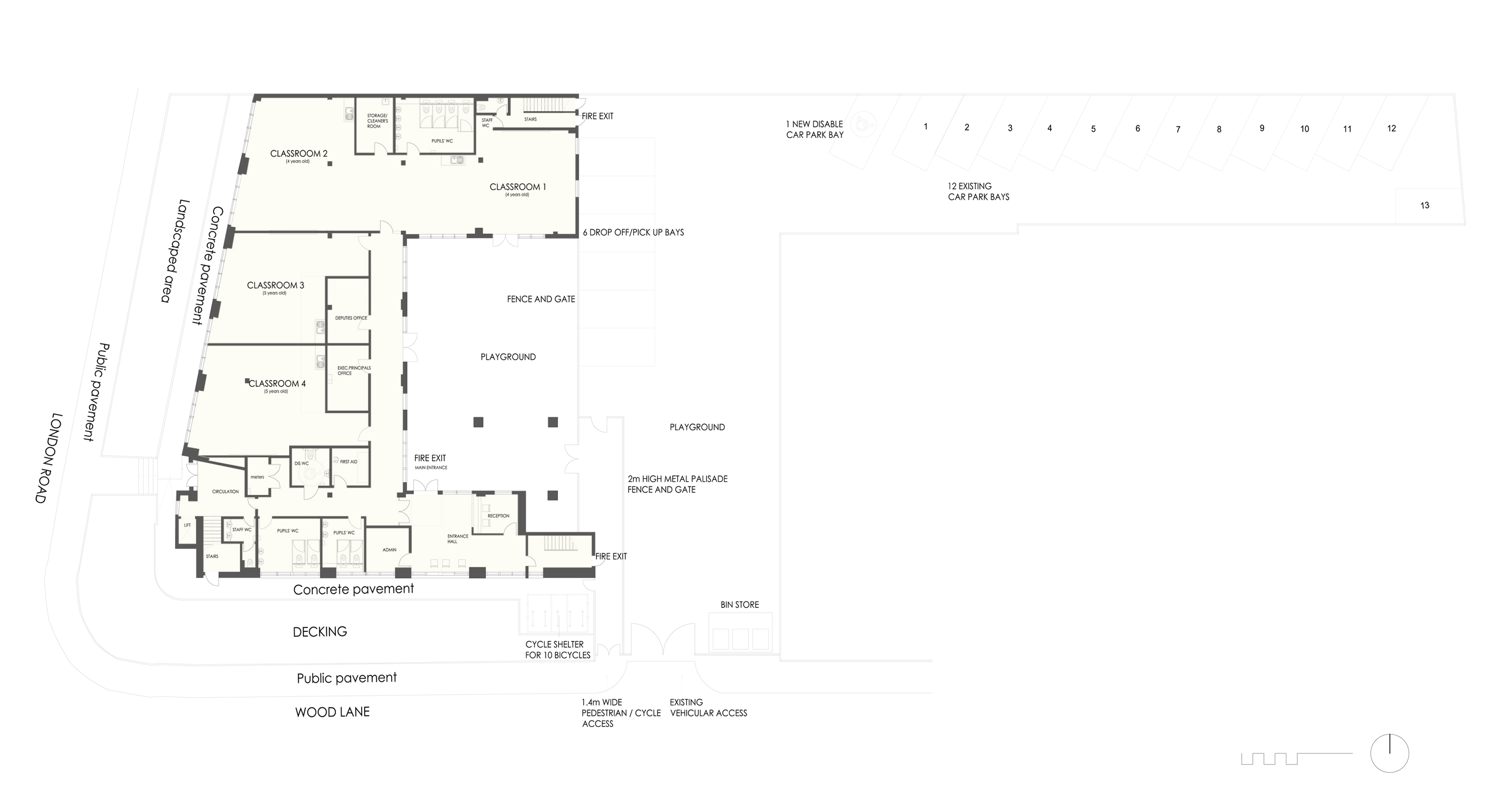
A government funded Faith school. A bespoke conversion of an office building on 3 floors for classrooms, play areas, offices, dining /kitchen and external landscaping.
A government funded Faith school. A bespoke conversion of an office building on 3 floors for classrooms, play areas, offices, dining /kitchen and external landscaping.