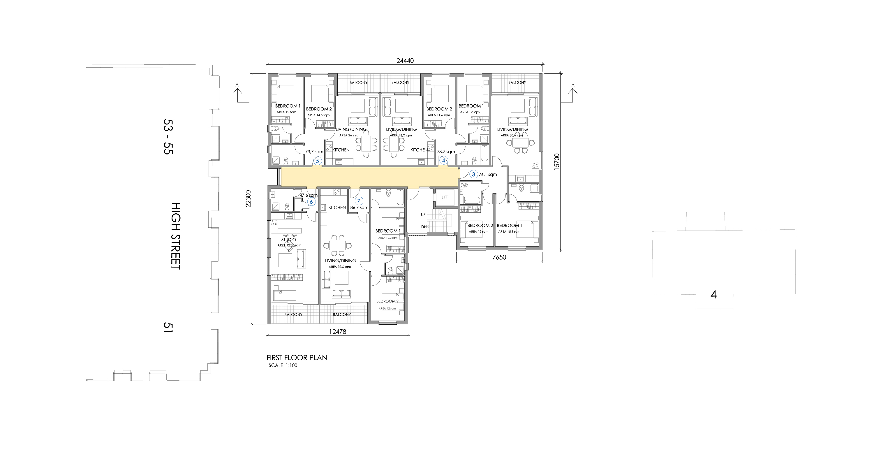
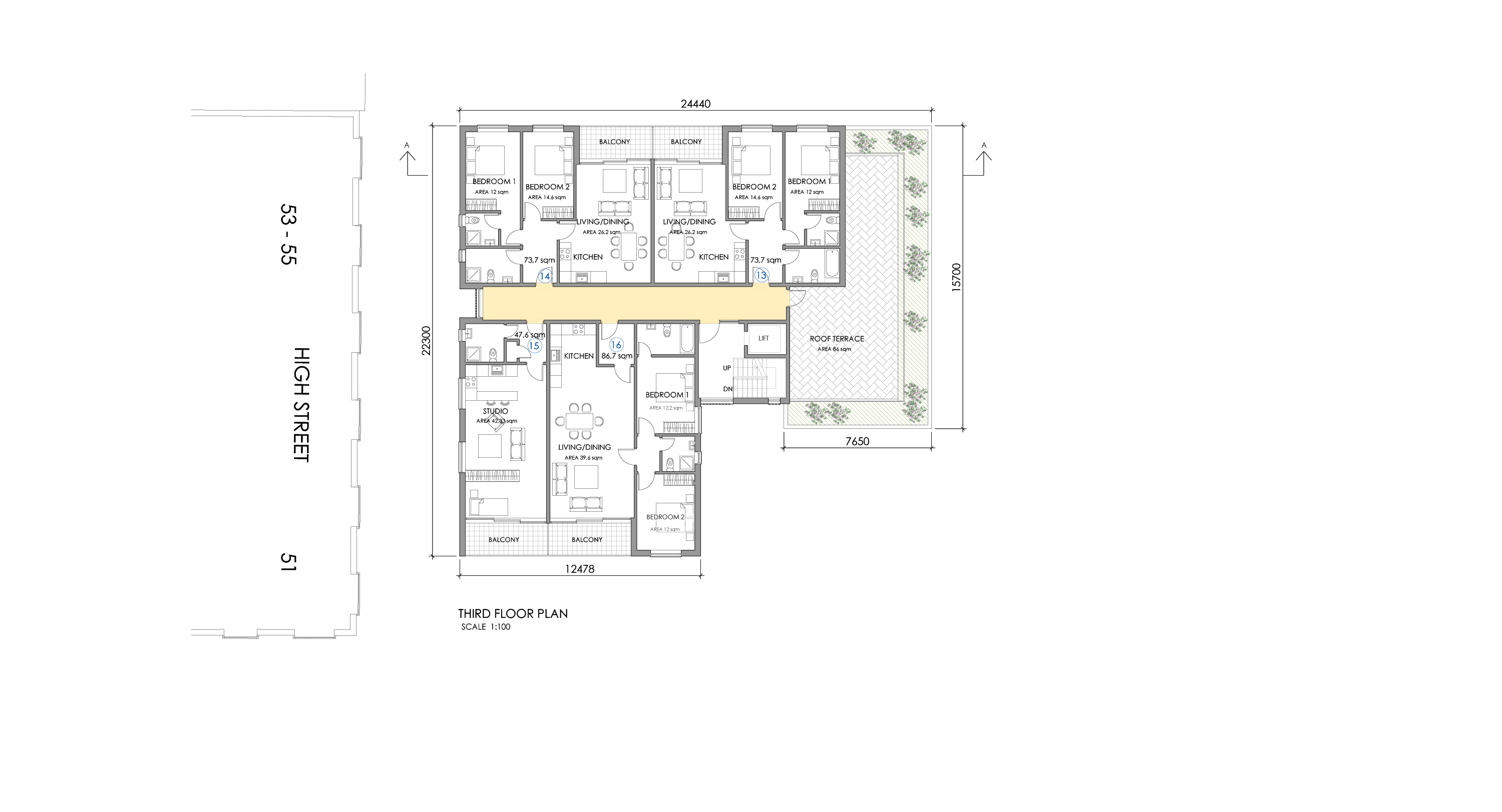
Midcroft
About this project
Midcroft, Ruislip - New residential building, 2016. A new residential block to replace an unattractive petrol station occupying land between the High Street and the traditional 2 storey houses. The new building connects with the street and is faced with attractive fibre cement panels and large windows.
