Gorst Road
About this project
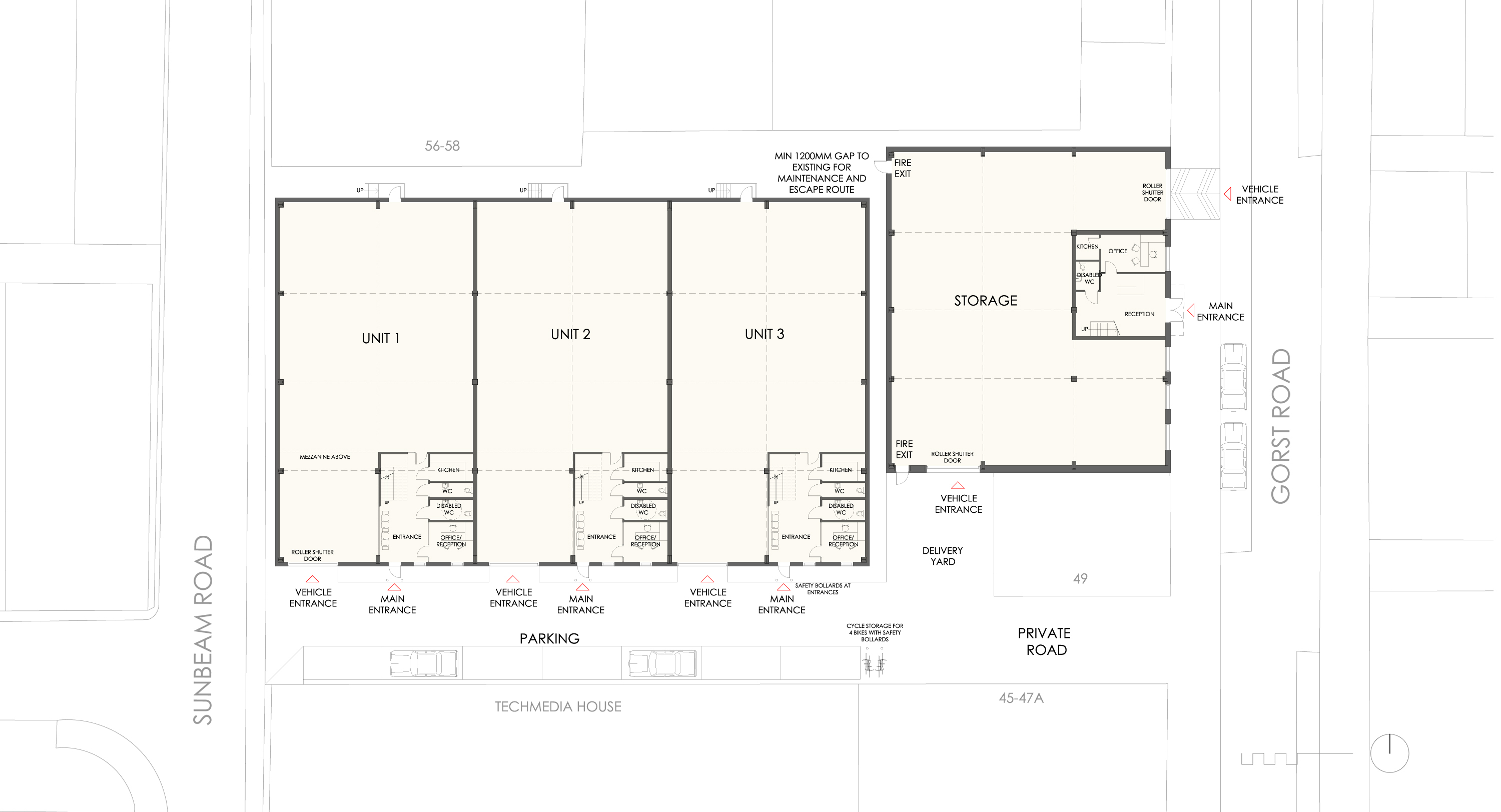
Gorst Road, Park Royal - New warehouse, 2016. 2 New warehouses built in the popular Park Royal Industrial Area. Each building is given a contemporary look with modern materials such as Fibre cement panels , aluminium panels and glass specified.
