Logo
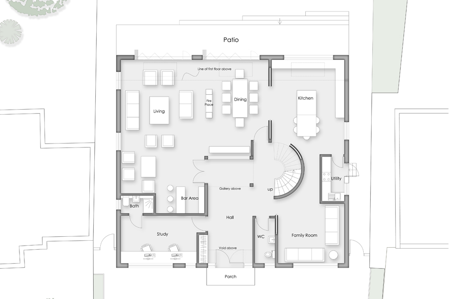
Copsewood House

About this project

Copsewood Road, Northwood - New House 2015. A new house set in an estate of traditional houses - given a modern twist.

Related Projects


South Road, Southall

South Road, Southall

Read More
New Heston Road, Hounslow

New Heston Road, Hounslow

Read More
Howards Thicket

Howards Thicket

Read More
Heritage View

Heritage View

Read More
Ogilvie Road

Ogilvie Road

Read More